Zum Hauptinhalt springen
07571 - 724 0Zum Kontaktformular
Anschrift
Leopoldplatz 1
72488 Sigmaringen
Öffnungszeiten
Montag - Freitag
8:30 - 12:00 Uhr
Montag - Donnerstag
13:00 - 16:15 Uhr
ID: 8802.1.2

Moderne Gewerbefläche in Reutlingen-Altenburg – Raum für neue Perspektiven (Haus 1/2)

Steigäckerstraße 1/2
72768 Reutlingen

758,70 m² Büro-/Praxisfläche13,00 € Miete pro m²

Details

Objekttyp
Büro- und Lagergebäude
Büro-/Praxisfläche
758,70 m²
Etagen:
2
Mietdauer:
länger als 2 Jahre
Anzahl Parkflächen:
2
Bezugsfrei ab:
Ab 2026

Kosten

Miete pro m²
13,00 €
Nebenkosten:
+ 700,00 €
Preis pro Parkfläche:
60 €
Kaution:
3x Kaltmiete
Kaution:
3x Kaltmiete

Bausubstanz & Energieausweis

Objektzustand:
Gepflegt
Ausstattung:
Gehoben

Ausstat­tungs­merkmale

Küche vorhanden

Lage

Der Stadtteil Reutlingen-Altenburg liegt im nordöstlichen Teil von Reutlingen und zeichnet sich durch seine gute infrastrukturelle Anbindung sowie seine ruhige, gewerbefreundliche Umgebung aus. Altenburg kombiniert ländlichen Charme mit einer funktionalen Lage für Gewerbe- und Handwerksbetriebe.

Objekt­beschreibung

Zwei Ebenen, 758 m², eine durchdachte Struktur: Diese Gewerbeimmobilie verbindet professionelle Büroflächen mit vielseitig nutzbaren Arbeitsbereichen unter einem Dach – eine Kombination, die für unterschiedlichste Geschäftsmodelle funktioniert.
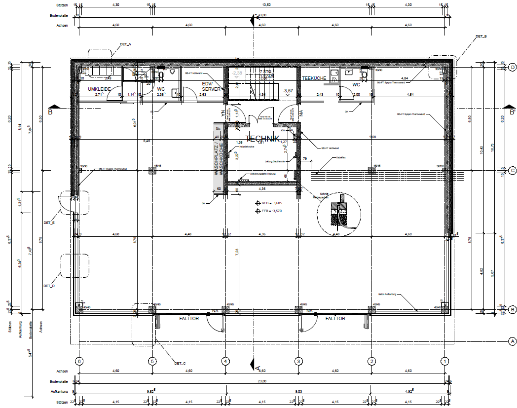
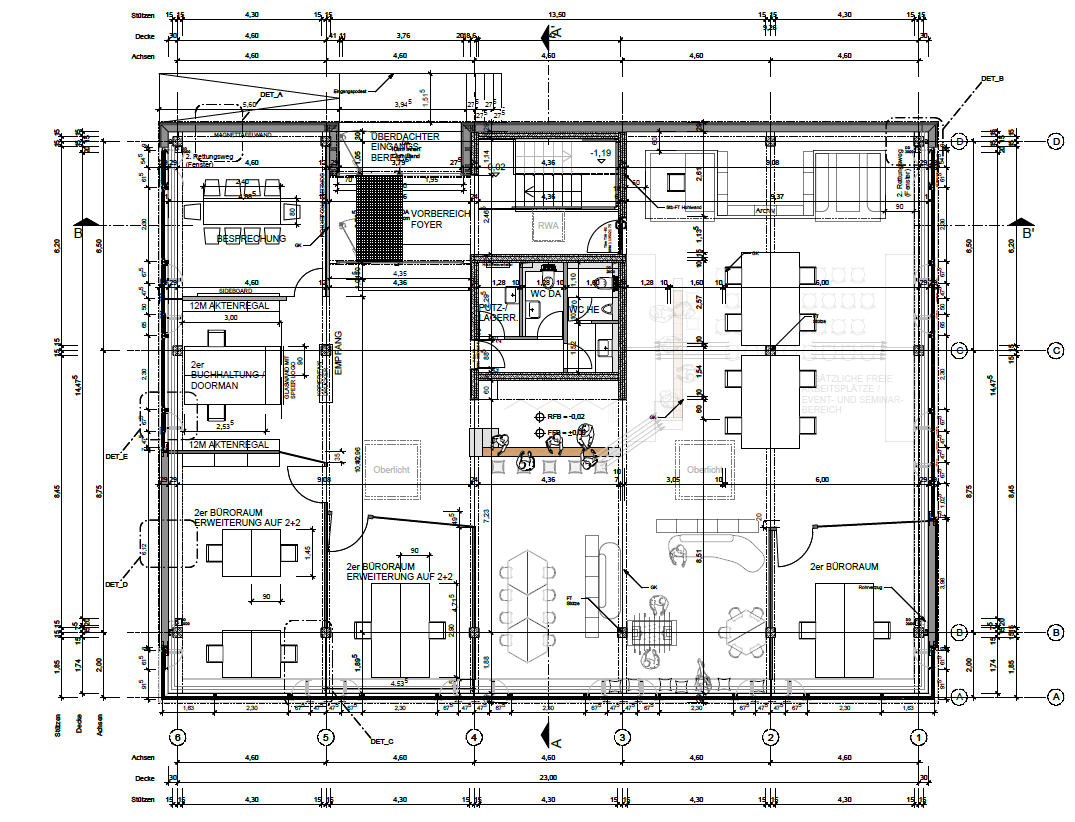
Im Erdgeschoss erwarten Sie großzügige, lichtdurchflutete Räume mit natürlichen Materialien und Blick auf die Schwäbische Alb. Die Aufteilung verbindet Einzelbüros mit offenen Co-Working-Spaces, hochwertig ausgestattete Ruhezonen für konzentrierte Besprechungen und großzügige Flächen für Präsentationen oder Coachings. Eine vollausgestattete Büroküche sowie hochwertige Netzwerkverkabelung gehören zur Ausstattung. Der attraktive Außenbereich bietet zusätzlichen Raum für Pausen oder informelle Meetings. Ausreichend Parkflächen stehen am Objekt selbst und in der direkten Umgebung zur Verfügung. Das Untergeschoss mit seinen 350 m² und 3 Metern Deckenhöhe bietet den funktionalen Gegenpart: Hier findet Produktion statt, werden Waren gelagert oder technische Systeme betrieben. Die befahrbare Ebene mit Torzufahrt ermöglicht direkten Zugang für Material, Waren und Fahrzeuge bis Sprinter-Höhe. Industriestrom ist vorhanden. Funktionale Sanitärräume mit Duschen und Umkleiden sind hier ebenfalls vorhanden.
Das macht die Immobilie interessant für produzierende Gewerbe – oben Verwaltung, Kundenbetreuung oder Showroom, unten Produktion mit direkter Materialanlieferung. Für Webshops und Handelsunternehmen, die Büro und Lager an einem Ort brauchen. Für IT-Unternehmen und Agenturen mit Foto- / Videoproduktionen. Oder für Kanzleien und Beratungen, die repräsentative Räume mit Archivflächen kombinieren möchten.
Ein Highlight für die Kasse: Die Erdwärmepumpe heizt im Winter über Fußbodenheizung und kühlt im Sommer über das gleiche System – ohne zusätzliche Klimaanlage. Die PV-Anlage liefert Strom. Ladesäulen für E-Mobility sind installiert. Die Betriebskosten bleiben dadurch dauerhaft niedrig, das Arbeitsklima ganzjährig angenehm.
Die Verkehrsanbindung über B464, B27, B28 und A8 verbindet Reutlingen mit Stuttgart, Tübingen und Metzingen in kurzer Zeit – ein klarer Standortvorteil für Kunden- und Lieferverkehr.
Bei Expansionsplänen steht das Nachbargebäude Steigäckerstraße 1/1 ebenfalls zur Verfügung – einzeln oder kombiniert, zur Miete oder zum Kauf.
Verfügbar ab 2026.

Ausstattung

- Erdwärme- / -kühlung
- PV-Stromversorgung
- (Fast) keine laufenden Energiekosten
- 3 m Deckenhöhe im Büro
- Dusch- und Umkleideräume
- Industriestrom
- E-Mobilität verfügbar

Sonstiges

Zusätzlich anfallende Kosten bei Anmietung der Gesamtfläche: (Können Variieren)

Möblierungspauschale pro Monat (Optional) : 750,00 €
Nebenkostenvorauszahlung pro Monat: 700,00 €
zzgl. 19% Mehrwertsteuer

Die Option zur gemeinsamen Anmietung der Steigäckerstraße 1/1+1/2 sowie der Kauf beider Objekte ist ebenfalls möglich. Kommen Sie gerne auf uns zu.

Ansprechpartner:
Frau Vanessa Haile
v.haile@gsw-sigmaringen.de

Mit dem Aufruf der Karte erklären Sie sich einverstanden,
dass Ihre Daten an Google übermittelt werden und dass Sie die Datenschutzerklärung gelesen haben.

Karte anzeigen

Adresse:

Steigäckerstraße 1/2
Reutlingen

Google Maps
Vanessa Haile

Telefon
+49 7571 724127

Immobilienkontakt

Immobilienkontaktformular

Wir nutzen aus Sicherheitsgründen und zum Schutz der Übertragung vertraulicher Inhalte, die Sie an uns senden, eine TLS-Verschlüsselung. Die nach Art. 13 DSGVO bei der Datenerhebung zu machenden Informationen finden Sie in unserer Datenschutzerklärung.