Moderne Gewerberäume samt Lager mit vielseitigen Nutzungsmöglichkeiten in Reutlingen (Haus 1/1)
Steigäckerstraße 1/1
72768 Reutlingen

Details
- Objekttyp
- Büro- und Lagergebäude
- Büro-/Praxisfläche
- 934,50 m²
- Etagen:
- 3
- Mietdauer:
- länger als 2 Jahre
- Anzahl Parkflächen:
- 15
- Bezugsfrei ab:
- Ab 2026
Kosten
- Miete pro m²
- 13,00 €
- Nebenkosten:
- + 700,00 €
- Preis pro Parkfläche:
- 60 €
- Kaution:
- 3x Kaltmiete
- Kaution:
- 3x Kaltmiete
Bausubstanz & Energieausweis
- Objektzustand:
- Gepflegt
- Ausstattung:
- Gehoben
- Energieausweis:
-
Erstellungsdatum: ab 1. Mai 2014 (EnEV 2014)
Ausweistyp: Bedarfsausweis
Ausstattungsmerkmale
Lage
Der Stadtteil Reutlingen-Altenburg liegt im nordöstlichen Teil von Reutlingen und zeichnet sich durch seine gute infrastrukturelle Anbindung sowie seine ruhige, gewerbefreundliche Umgebung aus. Altenburg kombiniert ländlichen Charme mit einer funktionalen Lage für Gewerbe- und Handwerksbetriebe.
Objektbeschreibung
Das Objekt befindet sich in Reutlingen‑Altenburg in der Steigäckerstraße, einer Gewerbe- und Industrieumgebung mit guter Erreichbarkeit. Die Anbindung an das öffentliche Verkehrsnetz, sowie an wichtige Verbindungsstraßen ist günstig.
Die Steigäckerstraße befindet sich im südlichen Teil des Stadtteils und ist Teil eines kleineren, gut etablierten Gewerbegebiets mit einem Mix aus Handwerksbetrieben, Dienstleistern und Lagerflächen. Die Nähe zur Bundesstraße B464 sowie die gute Erreichbarkeit der B27 und B28 ermöglichen schnelle Verbindungen in Richtung Tübingen, Stuttgart, Metzingen und zur Autobahn A8. Auch das Stadtzentrum von Reutlingen ist in wenigen Fahrminuten erreichbar.
Öffentliche Verkehrsmittel sind fußläufig erreichbar – eine Bushaltestelle liegt in unmittelbarer Nähe. Der Reutlinger Hauptbahnhof ist mit dem Auto oder ÖPNV in ca. 10–15 Minuten erreichbar.
Ausstattung
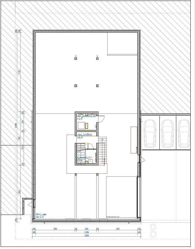
-Die Gesamtfläche beträgt ca. 934,50 m² (Lager, Büro)
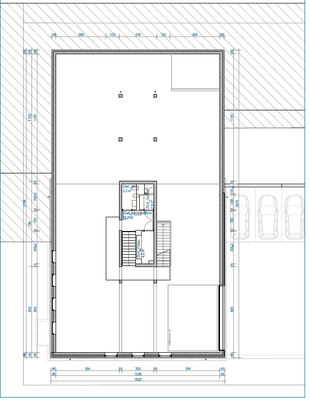
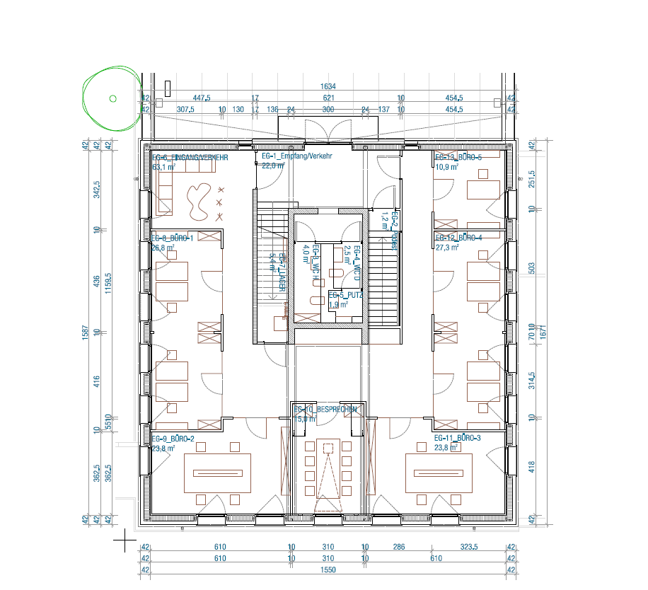
-Aufteilung: Erdgeschoss: 219,70 m² (Büro, Lagerfläche im Büro, Sanitär-/Putzraum Eingangsbereich)
Unter-und Zwischengeschoss: 460,40 m² (Lager, Teeküche, Haustechnik, Waschraum, WC, Abstell-/Putzraum, Vorraum, Verkehrsfläche Lagernutzung)
1. Obergeschoss: 254,40 m² (Büro, Sanitär-/Putzraum, Treppenhaus, Eingangsbereich)
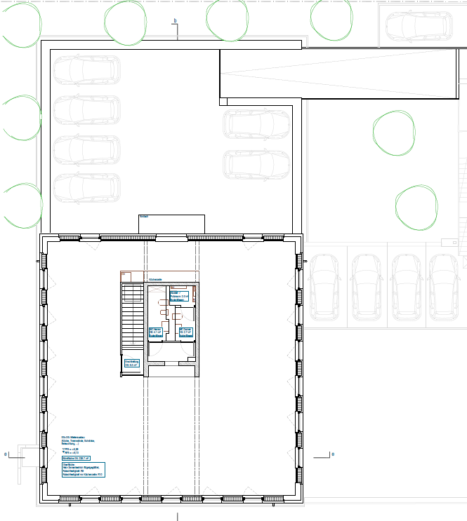
-Nach Absprache bis zu 15 Stellplätze zur Anmietung möglich
-Solider Baukörper mit Funktionalität für verschiedene gewerbliche Nutzungen
-Große, helle Räume / Hallenflächen und Torzufahrt.
-Mit einer Deckenhöhe von rund 4 m ist das Gebäude ideal für LKW-Befahrung und vielfältige Nutzungsmöglichkeiten ausgelegt.
-Über die Erdwärmeanlage erfolgt im Sommer eine angenehme Kühlung der Räume – ganz ohne die zusätzlichen Stromkosten einer Klimaanlage.
-Ein hervorragendes Energiekonzept mit Erdwärme und PV-Strom sorgt für beeindruckend niedrige laufende Kosten.
-Durch den Einsatz hochwertiger, natürlicher Materialien entsteht – in Verbindung mit der Fußbodenheizung – ein ganzjährig hervorragendes Raumklima.
-Parkmöglichkeiten auf dem Grundstück / in direkter Nähe vorhanden.
-Räumlichkeiten sind derzeit möbliert (Tische, Stühle, Einbauküche). Eine Vermietung oder einen Ankauf der Möblierung wäre möglich.
-E-Mobilität verfügbar.
Sonstiges
Zusätzlich anfallende Kosten bei Anmietung der Gesamtfläche: (Können Variieren)
Möblierungspauschale pro Monat (Optional): 1.200,00 €
Nebenkostenvorauszahlung pro Monat: 700,00 €
zzgl. 19% Mehrwertsteuer
Die Option zur gemeinsamen Anmietung der Steigäckerstraße 1/1+1/2 sowie der Kauf beider Objekte ist ebenfalls möglich. Kommen Sie gerne auf uns zu.
Ansprechpartner:
Frau Vanessa Haile
v.haile@gsw-sigmaringen.de
Mit dem Aufruf der Karte erklären Sie sich einverstanden,
dass Ihre Daten an Google übermittelt werden und dass Sie die Datenschutzerklärung gelesen haben.
Wir nutzen aus Sicherheitsgründen und zum Schutz der Übertragung vertraulicher Inhalte, die Sie an uns senden, eine TLS-Verschlüsselung. Die nach Art. 13 DSGVO bei der Datenerhebung zu machenden Informationen finden Sie in unserer Datenschutzerklärung.