Helle und freundliche 2 Zimmer Wohnung im schönen Sigmaringen
Sonnenhalde 39
72488 Sigmaringen













Details
- Objekttyp:
- Erdgeschosswohnung
- Wohnfläche ca.:
- 51 m²
- Nutzfläche ca.:
- 51 m²
- Frei ab:
- ab 01.06.2026
- Zimmer:
- 2
- Schlafzimmer:
- 1
- Badezimmer:
- 1
- Garage/Stellplatz:
- 1
Kosten
- Kaltmiete:
- 540,00 €
- Nebenkosten:
- + 165,00 €
- Heizkosten:
- 106,00 €
- Gesamtmiete:
- 841,00 €
- Miete für Garage/Stellplatz:
- 30,00 €
- Kaution:
- 3 x Kaltmiete
Bausubstanz & Energieausweis
- Baujahr:
- 1983
- Objektzustand:
- Gepflegt
- Ausstattung:
- Normal
- Heizungsart:
- Gas-Heizung
- Ausweistyp:
- Verbrauchsausweis
- Wesentliche Energieträger:
-
Gas
Ausstattungsmerkmale
Lage
Die Wohnung befindet sich in attraktiver Wohnlage von Sigmaringen im Wohngebiet Sonnenhalde. Die Umgebung ist geprägt von gepflegten Wohnhäusern und einer ruhigen, angenehmen Nachbarschaft mit hohem Wohnwert.
Das Stadtzentrum von Sigmaringen mit seinen vielfältigen Einkaufsmöglichkeiten, Restaurants, Cafés sowie Ärzten, Schulen und weiteren Einrichtungen des täglichen Bedarfs ist in wenigen Minuten erreichbar. Eine gute Anbindung an den öffentlichen Nahverkehr sowie an das regionale Straßennetz sorgt für eine komfortable Erreichbarkeit der umliegenden Städte und Gemeinden.
Die landschaftlich reizvolle Region rund um das Donautal bietet zudem einen hohen Freizeit- und Erholungswert mit zahlreichen Rad- und Wanderwegen in unmittelbarer Nähe. Insgesamt verbindet die Lage ruhiges Wohnen mit einer gut ausgebauten Infrastruktur und naturnahem Umfeld.
Objektbeschreibung
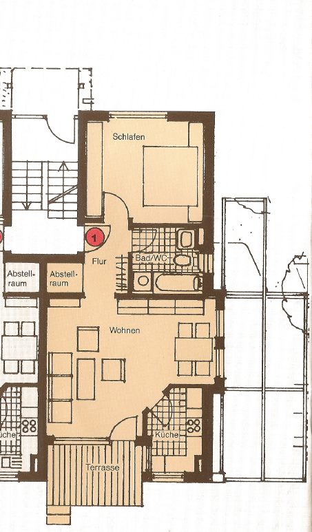
Die freundliche 2-Zimmer-Wohnung liegt im Erdgeschoss eines Mehrfamilienhauses mitten in einer ruhigen aber doch zentralen Wohnlage. Der Zuschnitt der Wohnung ist praktisch und modern.
Ausstattung
Die Wohnung betreten Sie über den Flur, der in alle übrigen Zimmer erschließt, er ist zu Gunsten der übrigen Räume knapp bemessen. Das Badezimmer ist mit einer Dusche und einem WC ausgestattet.
Die Küche ist ein lichtdurchfluteter Raum, dieser mit einer modernen Einbauküche ausgestattet ist. In dem hellen Wohnbereich kann der Essbereich integriert werden. Vom Wohnzimmer aus gelangen Sie auch auf den Balkon mit kleinem Gartenanteil. (Gemeinschaftliche Nutzung der Hausgemeinschaft)
Das Schlafzimmer ist hell und freundlich. Eine praktische Nische neben der Wohnungstüre rundet das Angebot ab.
Sonstiges
Zur Wohnung gehört ein Kellerraum. Der Waschmaschinenplatz ist in der Wohnung. Im Keller steht der Hausgemeinschaft ein Trockenraum und ein Fahrradraum zur Verfügung.
Zur Wohnung gehört ein Außenstellplatz. Die monatliche Miete für den Stellplatz beträgt 30.00 Euro.
Ansprechpartner:
Frau Vanessa Haile
v.haile@gsw-sigmaringen.de
Mit dem Aufruf der Karte erklären Sie sich einverstanden,
dass Ihre Daten an Google übermittelt werden und dass Sie die Datenschutzerklärung gelesen haben.
Wir nutzen aus Sicherheitsgründen und zum Schutz der Übertragung vertraulicher Inhalte, die Sie an uns senden, eine TLS-Verschlüsselung. Die nach Art. 13 DSGVO bei der Datenerhebung zu machenden Informationen finden Sie in unserer Datenschutzerklärung.
